上海哈电阀门有限公司

主营:闸阀,截止阀,安全阀,止回阀
您现在的位置: 仪器仪表 > 阀门 > 其他阀门 > 上海哈电阀门有限公司 > 供求信息
载入中……
[供应]供应旁通阀
点击图片放大
  • 产品产地:
  • 产品品牌:
  • 包装规格:
  • 产品数量:
  • 计量单位:
  • 产品单价:
  • 更新日期:2014-09-29 09:11:19
  • 有效期至:2015-09-29
  • 收藏此信息
供应旁通阀 详细信息

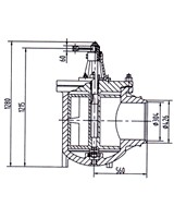
旁通阀 
F963H-4 
公称通径:DN300×2/400 
 
主要零件材料: 
名称 材料 
阀体 碳钢 
阀瓣 铬钼钢 
阀杆 渗氮钢 
阀盖 碳钢 
 
F963H-4性能参数: 
DN
(mm) 电动执行器
型号 输出力矩
(N.m) 输出角
(度) 阀门开关转角
(度) 
300×2(右) DKJ-400 600 0~90 0~70 
300×2(左) DKJ-400 600 0~90 0~70 
 
旁通阀 
序号 型号 清单号 公称
通径
DN(mm) 公称
压力
PN(MPa) 介质 最大
流量
(T/H) 连接尺寸
外径×壁厚
(mm) 阀体
材料 质量
(kg) 备注 
1 P963H-4 22.2427.003 300×2/400 4 汽 145 Φ325×25 碳钢 1545 旁通阀(右) 
Φ426×16 
2 P963H-4 22.2427.004 300×2/400 4 汽 145 Φ325×25 碳钢 1545 旁通阀(左) 
Φ426×16 
 
一、用途: 
    用于200MW机组超高压电站锅炉,安装在再热器冷段出口管道上,根据再热汽温的要求,通过改变阀瓣的位置,而变通向汽-汽加热器和旁通管道的流通截面积,从而调节再热器的汽温。 
二、结构简述: 
    1.本阀分为左、右两种型式,进、出口均为焊接连接。
    2.左、右型除阀瓣和指示板不同外,其余零件均可互换。
    3.阀瓣采用方形状,具有较大的开孔面积、阻力小的特点。
    4.阀杆经抗腐蚀性氮化处理,具有良好的抗腐蚀性及抗擦伤性能。
    5.阀门上部嵌有单向推力球轴承,开、关自如。
    6.阀门配有DKJ-400电动执行器,输出轴力矩为600N.m,输出轴角位移0~90°转角,阀门开关转角为70°,自动操纵阀门。 
三、安装说明: 
    1.阀门必须垂直安装,阀杆向上。
    2.由于两出口支管均为Φ325×25mm,因此,在地面组装时,应严格按图进行,做好必要的流向标记。
    3.阀瓣舌形部分位置于汽-汽加热器一侧向右偏过阀门中心线8°,杠杆上的指示灯应对准指示板关方向零位。
    4.电动执行器机构和杠杆连接要成“刚”性连接,连杆最长不应超过2m。连杆不应出现“S”形或其他弯曲情况,同时不准随意改变指示针所指阀门关方向零位或随意改变指示板位置。 

同类型其他产品
免责声明:所展示的信息由企业自行提供,内容的真实性、和合法性由发布企业负责,浙江民营企业网对此不承担任何保证责任。
友情提醒:普通会员信息未经我们人工认证,为了保障您的利益,建议优先选择浙商通会员。

关于我们 | 友情链接 | 网站地图 | 联系我们 | 最新产品

浙江民营企业网 www.zj123.com 版权所有 2002-2010

浙ICP备11047537号-1