上海哈电阀门有限公司

主营:闸阀,截止阀,安全阀,止回阀
您现在的位置: 仪器仪表 > 阀门 > 减压阀 > 上海哈电阀门有限公司 > 供求信息
载入中……
[供应]供应减温减压装置
点击图片放大
  • 产品产地:
  • 产品品牌:
  • 包装规格:
  • 产品数量:
  • 计量单位:
  • 产品单价:
  • 更新日期:2014-09-29 09:11:19
  • 有效期至:2015-09-29
  • 收藏此信息
供应减温减压装置 详细信息

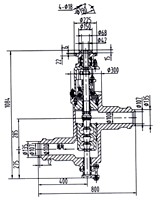
气动减压阀减温减压装置
Y6K42Y-10 
公称通径:DN50 
 
主要零件材料: 
名称 材料 
阀体 碳钢 
阀盖 碳钢 
阀座 不锈钢 
阀杆 不锈钢 
节流套 不锈钢 
 
Y6K42Y-10性能参数: 
流通能力Kv(t/h) 行程h(mm) 最大流通面积
fmm(cm2) 气源压力(KPa) 信号压力(KPa) 
18.2 22 485.9 >500 20~100 
 
减压阀 
一、用途: 
    减压阀是调节蒸汽压力的装置。用户根据需要选择用语减温减压系统、吹灰系统、油管路加热系统和空气预热器系统的减压阀。 
二、结构特点: 
    1.阀门靠提升或降低阀瓣的高度改变介质的流通面积,实现节流降压。
    2.阀门分为两种,一种是电动减压阀,一种是气动减压阀。
    3.节流形式由阀瓣头部调节和节流套小孔调节的两种形式来调节流通面积。
    4.气动减压阀的气动执行机构及附件可根据用户定义的需要选用国外进口产品。
    5.阀座采用钴铬钨硬质合金等离子喷焊而成,硬度高、耐磨、抗擦伤、使用寿命长。 
三、注意事项: 
    1.阀门必须垂直安装在管道上,介质流向按者图示方向。
    2.阀门运行前管道必须冲洗,不允许赃物进入阀体内。 

同类型其他产品
免责声明:所展示的信息由企业自行提供,内容的真实性、和合法性由发布企业负责,浙江民营企业网对此不承担任何保证责任。
友情提醒:普通会员信息未经我们人工认证,为了保障您的利益,建议优先选择浙商通会员。

关于我们 | 友情链接 | 网站地图 | 联系我们 | 最新产品

浙江民营企业网 www.zj123.com 版权所有 2002-2010

浙ICP备11047537号-1